
Townhome
3 Bedrooms
3 Bathrooms
Size: 1,930 sqft
Mnt Fee: $644.92
$1,199,000
About this Townhome in Lynnmour
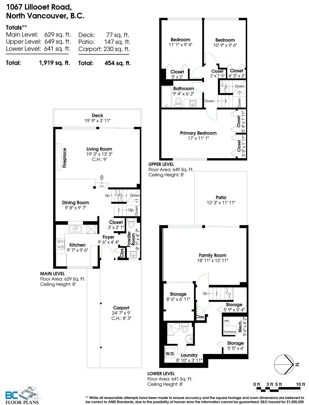
Welcome to family friendly Lynnmour West where you'll find this spacious, comfortable, 3 bedroom, 2.5 bathroom townhome. The main level features direct access from your private carport to an updated kitchen and spacious dining area which lead to the sunken living room with its cozy gas fireplace and full length south facing balcony. This END UNIT is one of the few in the development that boasts a walk out basement which opens to a sunny, south facing, fully fenced yard ideal for outdoor enjoyment. The windows have all been upgraded, the furnace is only 10 years old and the complex offers amenities like an outdoor pool and playground. With its prime location near schools, transit, parks, shopping and easy access to the 2nd Narrows Bridge this townhouse is a must-see! Easy to show.
More Details
- MLS®R2920846
- Bedrooms3
- Bathrooms3
- TypeTownhome
- Building1067 Lillooet Road, North Vancouver
- Size1,930 sqft
- Lot Size0 sqft
- Full Baths2
- Half Baths1
- ParkingCarport; Single
- Storeys3
- Year Built1973
- Style3 Storey
- Taxes$3,250
- Strata$644.92
Contact us today to view other sold properties
604.984.9711More about Lynnmour, North Vancouver
Latitude: 49.3159406
Longitude: -123.0228764
Similar Listings
102 - 342 Mountain Highway
Lynnmour, North Vancouver
Listed by Macdonald Realty/Stilhavn Real Estate Services.
306 - 1500 Fern Street
Lynnmour, North Vancouver
Listed by Royal Regal Realty Ltd..
2076 Purcell Way
Lynnmour, North Vancouver
Listed by RE/MAX Treeland Realty.