
Condo
1 Bedroom
1 Bathroom
Size: 737 sqft
Mnt Fee: $387
$548,800
About this Condo in West End VW
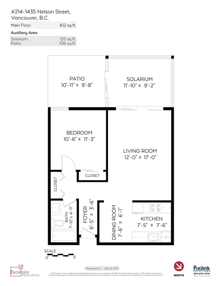
Super quiet and charming West End garden home with its own private, fully fenced BACKYARD PATIO. This extra-large one bedroom home faces south and features an excellent floor plan with absolutely no wasted space. There is a 125 SQ FT solarium (ideal for a home office) which leads to the patio that is set far away from the street so safety is not a concern. Recently updated with a brand new bathroom, authentic wood floors and fresh paint, this one is move in ready! Westport is arguably one of the best buildings in the area with several major upgrades consisting of a full rain screen, new plumbing, new balconies and new doors/windows. Outstanding projects (approved & funded and to commence this fall) include professionally decorated common areas and new landscaping. One parking & locker.
More Details
- MLS®R2189016
- Bedrooms1
- Bathrooms1
- TypeCondo
- Building1435 Nelson Street, Vancouver West
- Size737 sqft
- Full Baths1
- Half Baths0
- Storeys1
- Year Built1976
- StyleGround Level Unit
- Taxes$1,024.51
- Strata$387
Contact us today to view other sold properties
604.984.9711More about West End VW, Vancouver West
Latitude: 49.2861945
Longitude: -123.1334985
Similar Listings
304 - 1219 Harwood Street
West End VW, Vancouver West
Listed by RE/MAX City Realty.
601 - 1568 Alberni Street
West End VW, Vancouver West
Listed by Oakwyn Realty Ltd..
204 - 1050 Chilco Street
West End VW, Vancouver West
Listed by Oakwyn Realty Ltd..